Vale Regina Margherita 37 - Trieste
€ 3.000,00
260 mq
11 vani
5 camere
3 bagni
5 piano

Quartiere Trieste appartamento di prestigio Plurilocali
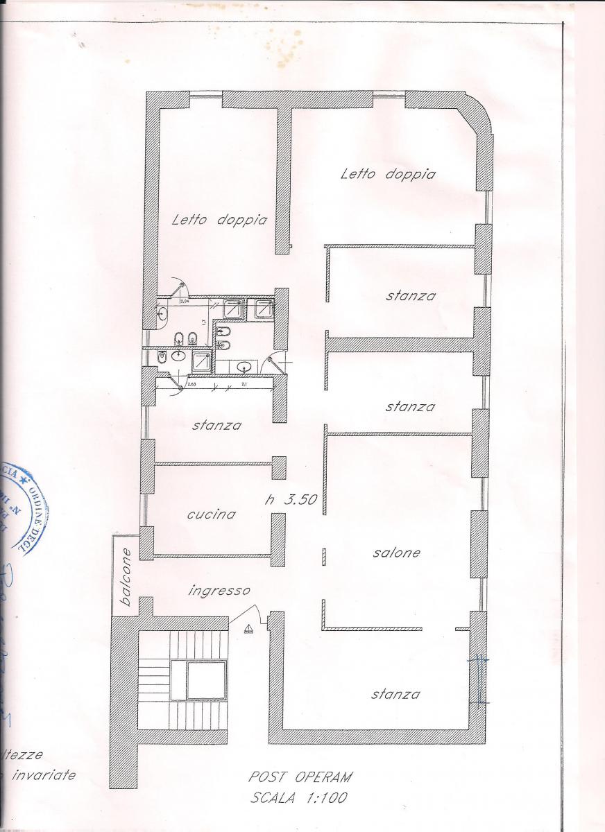
Immobili di prestigio in locazione In zona Trieste In elegante condominio del 1920 con servizio di portineria poniamo in locazione un appartamento posto al quinto ed ultimo piano recentemente ristrutturato, particolarmente luminoso e di ampia metratura. L’immobile, risulta essere l’unica proprietà sul piano quinto dell’edificio posto in Viale regina Margherita 37 e si Compone di: Ampio ingresso, camera da pranzo, soggiorno doppio, cucina abitabile, cinque camere da letto, tre bagni, un balcone. La proprietà è fornita di riscaldamento autonomo ed aria condizionata centralizzata. Sono preferiti referenziati con contratti a tempo indeterminato.L’appartamento viene ceduto libero dal mobilio per contratti 3 + 2.Libero da Novembre.
 

INDICE DI PRESTAZIONE ENERGETICA GLOBALE
< 116 kWh/m2a | Classe energetica D
Planimetria
Posizione Immobile
Ti interessa questo immobile?
Richiedi maggiori informazioni
CHIAMACI
SCRIVICI

Dicono di noi

Agente Immobiliare Abilitato e Certificato