Calci Pisa dimora in frantoio - Calci (Pisa)
€ 610.000,00
450 mq
5 camere
10 bagni
3 livelli

 

DIMORA IN FRANTIO DEL 700

Frantoio del 1.700 completamente e finemente ristrutturato conservando e mantenendo ove possibile le mura e i materiali originari della struttura. Un casale dal sapore antico, soffitti con travi e mezzane, pavimenti in cotto, muri interni in pietra, cucina abitabile con forno antico e salone con grande camino perfettamente funzionante d’epoca, in pietra serena e adeguato alle necessità odierne. Oltre 400 i metri quadri della casa disposta su tre livelli e con tre ingressi separati che offrono la possibilità di creare almeno due unità indipendenti. Ampi e luminosi vani collegati da scale antiche e grandi saloni da poter adibire ad aree relax o camere/studio. Zona esterna attrezzata con bel porticato ideale per mangiare all’aperto godendo così del rigoglioso giardino piantumato con alberi da frutto e corredato da una delle antiche vasche di raccolta del frantoio che volendo potrebbe diventare una piscina. Struttura completamente immersa nel verde e nella tranquillità con all’interno della proprietà comune un corso di acqua sorgiva fresca e limpida

INDICE DI PRESTAZIONE ENERGETICA GLOBALE
≥ 175 kWh/m2a | Classe energetica G
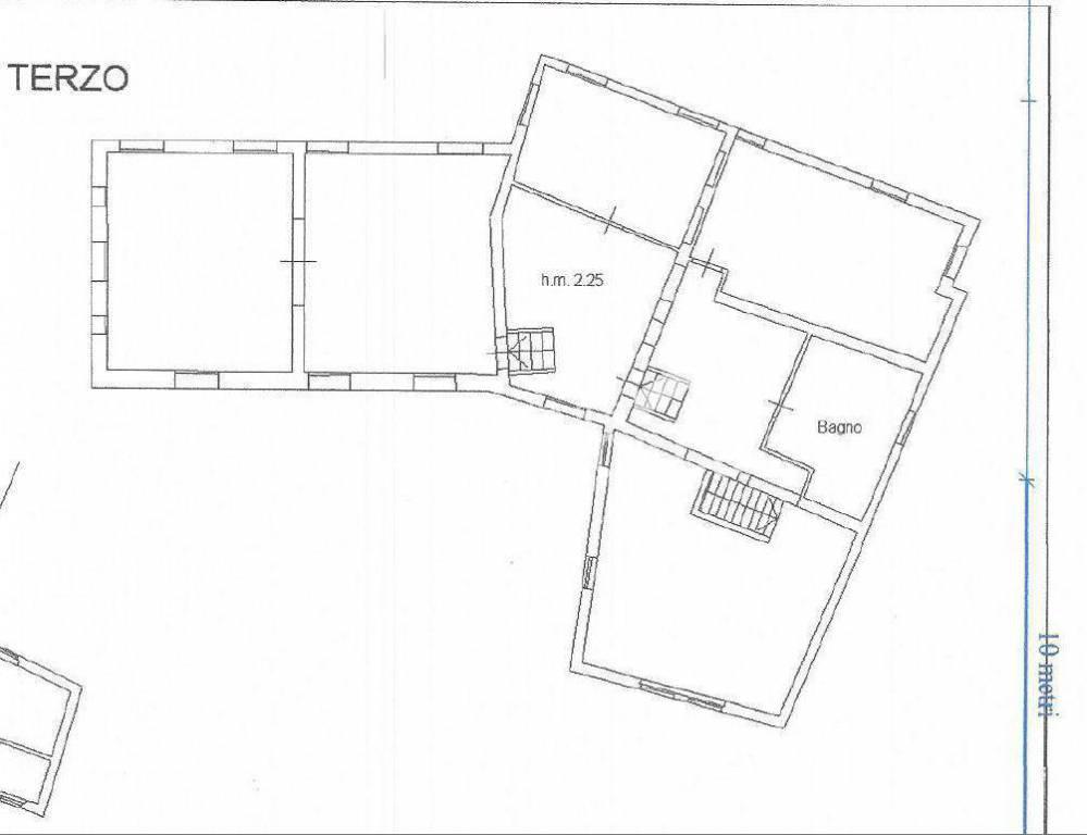
Planimetria
Posizione Immobile
Ti interessa questo immobile?
Richiedi maggiori informazioni
CHIAMACI
SCRIVICI

Dicono di noi

Agente Immobiliare Abilitato e Certificato