Somalia Trieste OTTIMO INVESTIMENTO largo Somalia 35 - Trieste
€ 275.000,00
75 mq
3,5 vani
1 camere
1 bagni
1 piano

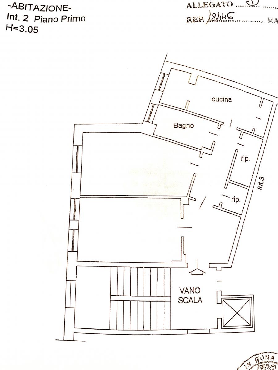
n Largo Somalia 35, proponiamo la vendita di una interessante proprietà, consigliata vivamente come ottimo investimento! L ‘appartamento è posto al piano primo con ascensore ed è composto da: ingresso, soggiorno, camera, bagno, due ampi ripostigli, cucina con annesso tinello. L’immobile si trova in buone condizioni di manutenzione ed è dotato di riscaldamento centralizzato contabilizzato, affaccio esterno in una via privata molto tranquilla e silenziosa. La zona è particolarmente fortunata poiché è ben servita da numerosi mezzi di superficie che si diramano in tutte le direzioni della capitale :Bus: 135, 351, 63, 69, fermate COTRAL Verso Rieti,TRENO FL1,Metro B. L’area risulta essere particolarmente interessante a livello commerciale per via dei numerosi servizi che troviamo al contorno: supermercati, banche, posta, attività commerciali di rilievo.Il condominio ammonta ad euro 58 /mese, Mentre il riscaldamento a regime consta di quattro rate da 110 € cadauna. Possibilità di realizzare una seconda camera ed un secondo bagno! Clicca sul simbolo della macchina cinematografica che troverai sotto alle fotografie dell’annuncio così potrai fare una visita virtuale stando comodamente seduto sul divano di casa tua.

INDICE DI PRESTAZIONE ENERGETICA GLOBALE
≥ 175 kWh/m2a | Classe energetica G
Planimetria
Posizione Immobile
Ti interessa questo immobile?
Richiedi maggiori informazioni
CHIAMACI
SCRIVICI

Dicono di noi

Agente Immobiliare Abilitato e Certificato