Via della Camilluccia 60 Villa Panoramica - Camilluccia Roma
€ 3.400.000,00
500 mq
15,5 vani
7 camere
8 bagni
0 piano

 Via della Camilluccia 60

“Nella riserva naturale del parco di Monte Mario, con vista panoramica sulla città eterna e a due passi dal centro di Roma, poniamo in vendita una villa di Metri quadri calpestabili 500 circa,con giardino privato di circa 2000 metri. L’ immobile si presenta su tre livelli :Al piano terra troviamo un ampio salone (90 m2), bagno per ospiti, ampia cucina e sala da pranzo vera data. Il piano 1 è composto composto da 3 stanze da letto matrimoniali con tre bagni. Piano meno 1 che affaccia con porte finestre sul retro del giardino,è composto da un ampio salone con cucina, 4 stanze da letto matrimoniali e 4 bagni. In aggiunta abbiamo un ampio corridoio lungo circa 15 metri con armadi a muro della stessa lunghezza ed una area lavanderia (lavatrice e asciugatrice) Il giardino di 2000 metri quadrati circa è suddiviso in 2 zone (davanti e dietro la casa). Due aree parcheggio di cui una coperta. Aggiornato

Dati principali
Villa panoramica Via della Camilluccia 60
3400000
INDICE DI PRESTAZIONE ENERGETICA GLOBALE
< 145 kWh/m2a | Classe energetica E
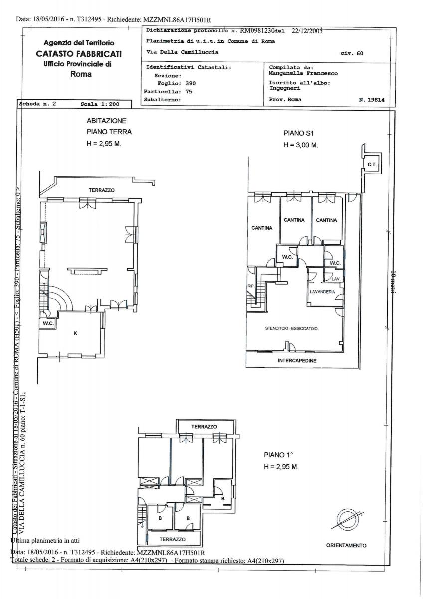
Planimetria
Posizione Immobile
Ti interessa questo immobile?
Richiedi maggiori informazioni
CHIAMACI
SCRIVICI

Dicono di noi

Agente Immobiliare Abilitato e Certificato